欢迎来到江苏泰科流体控制阀门有限公司网站!
减压阀减压阀减静压的作用原理是什么?你知道吗?
阀后压力允许波动时宜用比例式减压阀;阀后压力要求稳定时宜采用可调式减压阀。1、减压阀只能同时减静压和动压!压得同时不影响水流量。4、动压减压原理是使减压阀处于一个能量损失过流件的状态。阀后压力并不可过大的原因。减压孔板减压孔板相对于减压阀来说,系统比较简单,投资较少,管理方便。另外,减压孔板容易堵塞。减压稳压消火栓减压......
[2022-05-25]
[山东海电阀门]D341W通风蝶阀烟道蝶阀焊接蝶阀价格
通风法兰蝶阀价格D341W通风法兰蝶阀采用与阀体相同材料加工成密封圈,其适用温度随阀体选材而定,公称压力≤1.通风蝶阀在管道中一般应当水平安装。1、通风蝶阀设计新颖、合理,结构,重量轻,启闭迅速。2、通风蝶阀内无连杆、螺栓等、工作可靠、使用寿命长。精心为您推荐【法兰橡胶蝶阀】是销售的主要产品之一,公司常年备有大量库存现......
[2022-05-25]
2.黄铜减压阀在管道中起到一定的止回作用!
黄铜减压阀安装必须严格按照阀体上的箭头方向保持和流体流动方向***。意大利黄铜减压阀在管道中起到一定的止回作用,为了防止水锤的危害,也可安装小的膨胀水箱,防止损坏管道和阀门,过滤器必须安装在黄铜减压阀的进水管前,而膨胀水箱必须安装在黄铜减压阀出水管后!如果需要将黄铜减压阀安装在热水系统时,您必须在黄铜减压阀和膨胀水箱之......
[2022-05-25]
冷凝水是否就是造成减压装置失控的主要原因是什么?
由此结论,系统冷凝水是破坏蒸汽减压阀稳压调节功能的最基本的原因。3系统冷凝水是唯一的来源在写这篇文章过程中有同行提出,减压阀在其自身工作过程的热交是否会产生冷凝水?由此看来,蒸汽经过减压阀的流动过程,应该认为是绝热节流过程。蒸汽经过减压阀后,非但不会产生冷凝水,而且蒸汽干度也得到了提高,可以说冷凝水的产生来自系统,而且......
[2022-05-25]
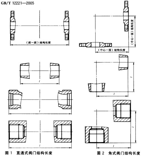
本标准与ISO5752:1982《法兰管路系统金属阀门结构长度》
删除原标准表2的同型系列闸阀结构长度表。本标准代替标准2的同型系列闸阀结构长度表。4-1994《阀门的结构长度》。本标准规定了法兰连接阀门的结构长度、焊接端阀门的结构长度、对夹连接阀门的结构长度、内螺纹连接阀门的结构长度、外螺纹连接阀门的结构长度,及其结构尺寸的度偏差。1法兰连接阀门结构长度基本系列见表1。直通式焊接端......
[2022-05-25]
输出压力P2的安装和设置是一定要遵守规范的
鉴于水的漏失率和浪费程度几乎同给水系统的水压大小成正比,因此减压阀具有改善系统运行工况和潜在节水作用,据统计其节水效果约为30%。1、减压阀组和过滤器应该是配套安装的,且过滤器的孔网直径不会小于4目/cm2-5目/cm2。1用1备的减压阀组应定期轮换工作。无论选用比例式还是可调式减压阀,其减压比P1∶P2不宜选择过大,......
[2022-05-25]多年阀门制造经验
专注流体设备研发生产制造