欢迎来到江苏泰科流体控制阀门有限公司网站!
单蝶倒流防止器装置结构及工作原理基础上的分析
止回阀是最简单的倒流防止器装置,各类型的止回阀,虽然具有控制液体单向流动的作用,但它并不具备完全防止水回流的功能。倒流防止器装置能量损失按过流件结构能量损失计算,目前的倒流防止器装置过流件结构设计时,一般是采用相同的两个止回阀和一个泄流阀,泄流阀一般变化很少。...
[2022-06-05]
一家专营进口气动液压、工控的公司,你值得拥有!
是一家专营进口气动液压、工控的公司。现和FESTO电磁阀,ATOS电磁阀,NACHI电磁阀,电磁阀,电磁阀,电磁阀,丰兴电磁阀作为合作伙伴,已经形成为一个规模化,具有相当加工水平,实力雄厚的专业企业。在管理上建立了规范化、制度化体系。现代化的管理手段,为公司的良好发展奠定了坚实的基础。杰克还建立了完善的客户销售计算机网......
[2022-06-05]
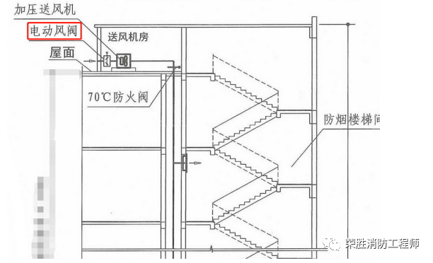
【知识点】1.电动风阀的排烟管道及排烟风机
②在机械排烟系统中,存在于排烟与通风空调系统合用的情况下,电动风阀平时常开,火灾时电动关闭,并且每个排烟合用系统的管道上需联动关闭的通风和空气调节系统的电动风阀不应超过10个。200mm说的是排烟防火阀与墙端面的距离,而2.0说的是排烟防火阀两侧2....
[2022-06-05]
合景消防:自动喷水灭火系统的安装工艺及流程讲解
管道支吊架的安装位置不应防碍喷头的喷水效果。水泵配管安装应在水泵定位找平正,稳固后进行。安装报警阀组的室内地面应有排水设施。以上内容就是自动喷水灭火系统施工工艺及自动喷水灭火系统施工流程,看完之后不知道有没有能帮助到你呢?...
[2022-06-05]
公称通径连接形式焊接、螺纹弹簧式安全阀-16t铜安全阀
安全阀结构主要有两大类:弹簧式和杠杆式。弹簧式是指阀瓣与阀座的密封靠弹簧的作用力。随着大容量的需要,又有一种脉冲式安全阀,也称为先导式安全阀,由主安全阀和辅助阀组成。安全阀的排放量决定于阀座的口径与阀瓣的开启高度,也可分为两种:微启式开启高度是阀座内径的(1/15)~(1/20),全启式是(1/3)~(1/4)。...
[2022-06-05]
高压改常压,炉顶,除尘,煤气切断阀通蒸汽,保证煤气系统安全!
短期休风操作程序?47、短期休风后复风操作程序?4)联系送风,发“送风”信号,待热风炉做完送风操作后逐渐加静叶并适当关闭放风阀;5)休风时减风过程要静叶同放风阀结合操作,禁止只从静叶减风而不相应动放风阀,避免喘振下降太快引起放风。b按短期休风程序进行休风操作。c按短期休风后复风程序操作。答:长期休风除操作程序与短期休风......
[2022-06-05]多年阀门制造经验
专注流体设备研发生产制造