欢迎来到江苏泰科流体控制阀门有限公司网站!

一、缩径全焊接球阀相关概述
Q61F缩径全焊接球阀的整体结构采用全焊接的工业结构,使阀门的内、外密封得到了极大的提高,阀门的重量得到了很大的降低(特别是DN300以下口径)使阀门的安装变得更为便捷,不仅降低了工程施工的成本,也节省了时间。全焊接球阀广泛应用于城市燃气的地下管线,天然气输送管线,调压站等领域。
二、缩径全焊接球阀特点
1、阀体采用无缝钢管压制成型。
2、阀门的整体结构采用全焊接制造工艺,减少了外泄漏;阀门重量大大减轻,安装更便捷。
3、采用弹性垫圈及碳纤维增强密封圈,可经手几万次往复运动无泄漏,保证阀门的使用寿命。
4、阀门的密封可以在-40℃-200℃的条件下连续使用而不会失效。
5、连接方式有对焊、法兰、螺纹连接等形式,开启采用手柄、蜗轮传动、电动等方式。
6、长杆直埋焊接球阀可以深埋地下,不用设置阀门井,操作者只需在地上用手柄或蜗轮传动机构操作即可,非常方便。
三、缩径全焊接球阀参数
| 公称通径:DN15-D200 | 公称压力:1.6MPa-4.0MPa | 适用介质:水、气、油等 |
| 适用温度:-20℃-200℃ | 阀体材质:碳钢、不锈钢 | 操作形式:手柄 |
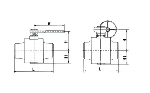
四、缩径全焊接球阀尺寸表

| 口径 | L | A | H | H1 | d | D1 | D(GB) | D(DIN) | S | 重量KG |
| 15 | 230 | 120 | 93 | 41 | 10 | 33.7 | 22 | 21.3 | 3 | 0.74 |
| 20 | 230 | 120 | 97 | 43 | 15 | 42.4 | 25 | 26.9 | 3 | 0.89 |
| 25 | 230 | 150 | 103 | 42 | 20 | 48.3 | 32 | 33.7 | 3 | 1.19 |
| 32 | 260 | 150 | 109 | 44 | 25 | 60.3 | 38 | 42.4 | 3 | 1.57 |
| 40 | 260 | 190 | 119 | 60 | 32 | 76.1 | 45 | 48.3 | 3 | 2.19 |
| 50 | 300 | 190 | 125 | 61 | 38 | 88.9 | 57 | 60.3 | 3.5 | 2.96 |
| 65 | 300 | 275 | 183 | 74 | 50 | 114.3 | 73 | 76.1 | 3.5 | 4.98 |
| 80 | 300 | 275 | 196 | 80 | 66 | 139.7 | 89 | 88.9 | 4 | 6.62 |
| 100 | 325 | 275 | 219 | 100 | 80 | 168.3 | 108 | 114.3 | 4.5 | 8.81 |
| 125 | 325 | 415 | 242 | 91 | 100 | 177.8 | 133 | 139.7 | 5 | 13.13 |
| 150 | 350 | 540 | 248 | 103 | 125 | 219.1 | 159 | 168.3 | 6 | 20.14 |
| 200 | 400 | 745 | 275 | 105 | 150 | 273 | 219 | 219.1 | 7 | 30.79 |
五、相关应用
全焊接球阀是由碳化特氟龙密封环及蝶形弹簧构成的,所以对压力和温度的变化适应能力强,在标注压力和温度范围内不会产生任何泄漏。
温馨提示: |