欢迎来到江苏泰科流体控制阀门有限公司网站!

一、蜗轮法兰全焊接球阀相关概述
Q341F蜗轮法兰全焊接球阀、Q347F蜗轮法兰固定式球阀的整体结构采用全焊接的工业结构,使阀门的内、外密封得到了极大的提高,阀门的重量得到了很大的降低(特别是DN300以下口径)使阀门的安装变得更为便捷,不仅降低了工程施工的成本,也节省了时间。全焊接球阀广泛应用于城市燃气的地下管线,天然气输送管线,调压站等领域。
二、蜗轮法兰全焊接球阀的特点
1、阀体采用无缝钢管压制成型。
2、阀门的整体结构采用全焊接制造工艺,减少了外泄漏;阀门重量大大减轻,安装更便捷。
3、采用弹性垫圈及碳纤维增强密封圈,可经手几万次往复运动无泄漏,保证阀门的使用寿命。
4、阀门的密封可以在-40℃-200℃的条件下连续使用而不会失效。
5、连接方式有对焊、法兰、螺纹连接等形式,开启采用手柄、蜗轮传动、电动等方式。
6、长杆直埋焊接球阀可以深埋地下,不用设置阀门井,操作者只需在地上用手柄或蜗轮传动机构操作即可,非常方便。
三、蜗轮法兰全焊接球阀参数表
| 公称通径:DN125-DN800 | 公称压力:1.6MPa-4.0MPa | 适用介质:水、气、油等 |
| 适用温度:-20℃-200℃ | 阀体材质:碳钢、不锈钢 | 操作形式:蜗轮传动 |
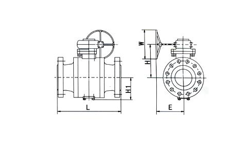
四、蜗轮法兰全焊接球阀尺寸表

| 口径 | L | H | d | B | D | D1 | N | D2 | 重量KG |
| 125 | 325 | 91 | 100 | 23 | 250 | 210 | 8 | 18 | 31.8 |
| 150 | 350 | 95 | 125 | 25 | 285 | 240 | 8 | 22 | 47.5 |
| 200 | 400 | 112 | 150 | 27 | 340 | 295 | 12 | 22 | 64.5 |
| 250 | 500 | 126 | 200 | 29 | 405 | 355 | 12 | 26 | 119.6 |
| 300 | 590 | 149 | 250 | 32 | 460 | 410 | 12 | 26 | 166.9 |
| 350 | 690 | 167 | 290 | 34 | 520 | 470 | 16 | 26 | 279.2 |
| 400 | 750 | 184 | 350 | 36 | 580 | 525 | 16 | 30 | 448.3 |
五、相关应用
全焊接球阀是由碳化特氟龙密封环及蝶形弹簧构成的,所以对压力和温度的变化适应能力强,在标注压力和温度范围内不会产生任何泄漏。
温馨提示: |