欢迎来到江苏泰科流体控制阀门有限公司网站!

一、日标法兰截止阀产品概述
J41W日标法兰截止阀是按照JIS标准设计制造。截止阀又称截门阀,属于强制密封阀门,所以在阀门关闭时,必须向阀瓣施加压力,以强制密封面不泄漏。当介质由阀瓣下方进入阀门时,操作力所需克服的阻力是阀杆和填料的摩擦力与由介质的压力所产生的推力,关阀门的力比开阀门的力大,所以阀杆的直径要大,否则会发生阀杆顶弯的故障。
二、日标法兰截止阀参数表
| 公称通径:1/2"-20" | 公称压力:10K-20K |
| 适用介质:水、气、油 | 适用温度:-20℃-425℃ |
| 阀体材质:不锈钢 | 设计标准:JIS B2071 |
| 结构长度:JIS B2002 | 法兰标准:JIS B2220 |
三、日标法兰截止阀零部件材质
| NO. | 零件名称 | 材质 | NO. | 零件名称 | 材质 | ||
| 1 | 阀体 | SCPH2 | SCS13/SCS14 | 2 | 阀瓣 | SCPH2 | SCS13/SCS14 |
| 3 | 对开圆环 | 304 | 304/316 | 4 | 阀瓣盖 | SM25C | 304/316 |
| 5 | 阀杆 | STS403 | 304/316 | 6 | 阀盖 | SCPH2 | SCS13/SCS14 |
| 7 | 填料 | Graphite | PTFE | 8 | 填料压盖 | SCPH2 | SCS13 |
| 9 | 阀杆螺母 | QT400 | 10 | 螺钉 | SM25C | 304 | |
| 11 | 手轮 | KTH330 | 12 | 螺母 | SM35C | 304 | |
| 13 | 铭牌 | AI | 14 | 螺母 | SM35C | 304 | |
| 15 | 螺栓 | SM45C | 304 | 16 | 密封垫 | 304+Graphite | PTFE |
| 17 | 螺母 | SM35C | 304 | 18 | 螺栓 | SM45C | 304 |
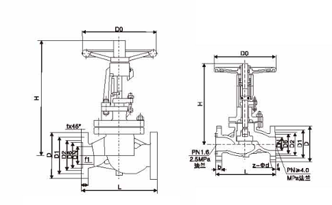
四、日标法兰截止阀尺寸表

J41H-10K外形尺寸
| NPS | D1 | d | K | D | f | C | N-Z | L | E | H |
| 50A | 50 | 96 | 120 | 155 | 2 | 16 | 4-19 | 203 | 200 | 312 |
| 65A | 65 | 116 | 140 | 175 | 2 | 18 | 4-19 | 216 | 220 | 330 |
| 80A | 80 | 126 | 150 | 185 | 2 | 18 | 8-19 | 241 | 260 | 389 |
| 100A | 100 | 151 | 175 | 210 | 2 | 18 | 8-19 | 292 | 300 | 418 |
| 125A | 125 | 182 | 210 | 250 | 2 | 20 | 8-23 | 356 | 350 | 475 |
| 150A | 150 | 212 | 240 | 280 | 2 | 22 | 8-23 | 406 | 400 | 517 |
| 200A | 200 | 262 | 290 | 330 | 2 | 22 | 12-23 | 495 | 500 | 632 |
| 250A | 250 | 324 | 355 | 400 | 2 | 24 | 12-25 | 622 | 550 | 955 |
| 300A | 300 | 368 | 400 | 445 | 3 | 24 | 16-25 | 698 | 600 | 1100 |
| 350A | 350 | 413 | 445 | 490 | 3 | 26 | 16-25 | 797 | 700 | 1100 |
| 400A | 400 | 475 | 510 | 560 | 3 | 28 | 16-27 | 914 | 800 | 1350 |
| 450A | 450 | 530 | 565 | 620 | 3 | 30 | 20-27 | 978 | 涡轮 | |
| 500A | 500 | 585 | 620 | 675 | 3 | 30 | 20-27 | 978 | ||
J41H-20K外形尺寸
| NPS | D1 | d | K | D | f | C | N-Z | L | E | H |
| 50A | 50 | 96 | 120 | 155 | 2 | 22 | 8-19 | 267 | 240 | 350 |
| 65A | 65 | 116 | 140 | 175 | 2 | 24 | 8-19 | 292 | 280 | 410 |
| 80A | 80 | 132 | 160 | 200 | 2 | 26 | 8-23 | 318 | 300 | 440 |
| 100A | 100 | 160 | 185 | 225 | 2 | 28 | 8-23 | 356 | 350 | 505 |
| 125A | 125 | 195 | 225 | 270 | 2 | 30 | 8-25 | 400 | 400 | 575 |
| 150A | 150 | 230 | 260 | 305 | 2 | 32 | 12-25 | 444 | 450 | 645 |
| 200A | 200 | 275 | 305 | 350 | 2 | 34 | 12-25 | 559 | 550 | 730 |
| 250A | 250 | 345 | 380 | 430 | 2 | 34 | 12-27 | 622 | 600 | 1020 |
| 300A | 300 | 395 | 430 | 480 | 3 | 36 | 16-27 | 711 | 650 | 1150 |
| 350A | 350 | 440 | 480 | 540 | 3 | 40 | 16-33 | 838 | 涡轮 | |
| 400A | 400 | 495 | 540 | 605 | 3 | 46 | 16-33 | 864 | ||
| 450A | 450 | 560 | 605 | 675 | 3 | 48 | 20-33 | 978 | ||
| 500A | 500 | 615 | 660 | 730 | 3 | 50 | 20-33 | 1016 | ||
五、日标法兰截止阀应用
日标法兰截止阀的启闭件是塞形的阀瓣,密封呈平面或锥面,阀瓣沿阀座的中心线作直线运动。可用于控制空气、水、蒸汽、各种腐蚀性介质、泥浆、油品等各种类似流体的流动。
| 温馨提示: 本文中所有文字、数据、图片均只适用于参考。需要查看更多的日标法兰截止阀性能参数、结构尺寸参数等详情,请联系我们。 |