欢迎来到江苏泰科流体控制阀门有限公司网站!
根据现场情况详细制定前期施工方案,按照施工流程图依次完成风管加工、风管及设备安装、调试。
施工流程图:

Ⅰ.通风、防烟、风管制作
1、为了提高运输效率,减少消耗和成品的完整性
车间采用预制现场组装的方式,即车间机械化加工成半成品后运至现场进行组装组装。
2、风管材质及连接方式见下表
序列号
系统类别
盘子
连接方式
1
空调送风管、新风管、排风管(圆形风管直径或矩形风管大边长)
≤200
>200~500
>500~1120
δ=0.5镀锌板
δ=0.75镀锌板
δ=1.2镀锌板
法兰连接
>1120
δ=2.0普通钢板
焊接
2
穿过防火墙的风道(圆形风道直径或矩形风道大边长)
≥200~500
>500~2000
δ=1.0镀锌板
δ=1.2镀锌板
法兰连接
3
预埋混凝土中的通风管道
焊接钢管
焊接
4
消防排烟管道
δ=1.6~2.0,普通钢板
焊接或法兰连接
3、金属矩形风管边长>630mm
当保温风管边长>800mm,管段长度大于或低压风管平面面积大于1.2平方米时,且中高压风管大于1.0平方米阀门公司,应采取一切加固措施。
4、如果在风管上加了支撑挡板
材料厚度与风管相同。风管支管与主管的交界处为三通分流,支管与主管底面(或顶面)分开时
5、风管弯头按“91SB6”标准图纸制作
空调通风系统的风道软接头可以用帆布,排烟系统可以用不燃的软质材料。
6、金属矩形风管与角钢法兰连接
当管壁厚度≤1.5mm时,可用翻边铆接,铆接要牢固;当管壁厚度>1.5mm时,可采用全焊或间断翻边焊。矩形风管法兰采用镀锌铆钉铆接。铆接前应将法兰除锈,然后用张丹刷。矩形风管的咬口应紧密、平整、无毛刺。
7、通风管道的连接方式为角钢法兰连接
适用于高压通风系统(防烟排烟系统和超静压系统)。

(角钢法兰连接方式)
金属矩形风管法兰材料规格表
风管长度(mm)
法兰材料规格(角钢)
≤630
25×3
630~1500
30×3
1500~2500
40×4
2500~4000
50×5
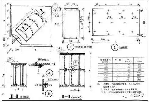
8、矩形弯头导流板
(1)空调风管长边大于500mm,直角弯头应配导流板,导流板弧度应与弯头角度一致. 风管转弯半径一般为R=D 矩形短 半径弯头应装导叶,导叶厚度应为风管厚度的2倍,不小于60mm,导叶数量不少于两个。
(2)导流板迎风边应光滑,导流板两端与管壁固定牢固,同一弯头内导流板的弧长应相同。

9、风管的咬合形式应选择如下
矩形风管或管件的四个角的组合具有接合角咬合。咬合宽度和余量根据板厚确定。
具体尺寸见下表:
钢材厚度
平咬合宽度 B
咬合宽度 B
0.7 或更少
6~8
6~7
0.7~0.82
8~10
7~8
0.9~1.2
10~12
9~10
风管咬合宽度表(mm)
10、风管接缝处应与接缝紧密结合
咬合缝的宽度应均匀。操作时用力要均匀,不能过重,不能有半咬、肿。
11、风管外观质量应平直、折叠
圆弧均匀,两端平行,无翘曲角,表面凹凸不大于5mm;风管与法兰连接牢固,法兰平整,宽度不小于6mm,靠近法兰。
Ⅱ.风管组件及支吊架安装
技术流程:

1、支吊架安装
(1)风管和构件支吊架的预埋件和膨胀螺栓的位置要正确
用膨胀螺栓固定支吊架时,应满足技术条件。后期将支架预埋在砖墙上。根据风管标高计算支架上表面到地面的距离。找准位置打孔后,将支架埋入孔内,将1:2水泥砂吊架嵌入槽内。填满空位。
(2)支吊架固定采用以下方法
①膨胀螺栓法。此方法适用于固定小型风管支吊架。本工程的支吊架大部分采用这种方式固定,支吊架通过在楼板、梁、柱上冲孔膨胀螺栓固定。
②焊接方法。此方法适用于风管尺寸较大,使用膨胀螺栓无法满足强度,支吊架采用预埋件焊接固定的场合。

(固定形式)
(3)安装衣架之前
根据风道中心线找到吊杆的铺设位置。单臂在风管中心线上;双臂架按支架螺孔间距或风管中心线对称安装。对于风管管路较长且风管排列整齐的部位,在安装支吊架时,先安装两端支吊架,再以两端支吊架为基准寻找采用拉拔法抬高中间支架。安装。同时,在适当的位置设置防摇支架。
(4)风口、阀门、检查孔等处不得安装支吊架。
以免影响操作。吊架不得直接挂在管道法兰上。支吊架的间距应按设计要求进行。每3米安装一个支吊架。风管垂直安装时,间距不大于4m,但每个立管的固定件不少于2个。绝缘风管支架和吊架必须在横臂上衬有带有防火涂料的硬木垫。木垫的厚度根据风道保温层的厚度而定。
风管支架与吊架(非保温风管)的距离应符合下表:
矩形风管的长边
支撑角度
螺栓
间距m
≤500
30×30×4
Φ8
3
510~1000
40×40×5
Φ8
3
1010-1500
50×50×6
Φ10
3
保温风管支架与吊架的距离应符合下表:
矩形管道
长边尺寸
水平风
管间距
垂直风
管间距
支撑角度
支撑角度
轰隆隆
衣架数量
≤400
3.4
4m
30×4
30×4
Ф8
2
≤1000
2.45
3.5m
40×5
40×5
Ф8
2
1001-2000
1.7
2m
50×6
50×6
Ф10
2
(5)支架和风管内嵌有垫料,不得损坏
所有阀门操作装置均配有开关标志,操作装置外露30-50mm绝缘层。

(风管支吊架方式)
三、风管及部件安装
1、管道和组件安装前
清除内部和外部的杂物和污垢并保持清洁。安装风管时,为方便安装,有条件的情况下尽量接地,一般接长10-12m左右。
2、根据系统选择风管法兰垫片
空调、通风管道采用8501密封胶带密封,厚度3mm,排气系统管道采用石棉橡胶板作为法兰垫片。
3、法兰垫片厚度3~5mm
垫片应与法兰齐平,不得突入管内,以免增加气流阻力,减少风管有效面积。
4、拧紧法兰螺栓时
受力要均匀,螺母方向要一致。风管立管的法兰应自上而下螺纹,以保护螺纹不被水泥砂浆等损坏。
5、屋顶出风道设置了防雨罩
贯穿屋顶的立管1.5m必须牢固固定完好,不得有裂缝、松动咬合、孔洞等缺陷,防止雨水从风管漏入室内当风管穿过墙壁和地板时,周围的缝隙中密布着防火柔性材料。

6、通过沉降接头连接风管并连接风管与设备的柔性短管采用帆布制成,外部涂有防火涂料
在将风管和设备连接到柔性短管之前,必须将风管和设备接口对齐,不得使用柔性软管进行缩径和偏心。安装柔性短管时,应注意松紧适当,不得扭曲。空调支管与出风口的连接采用带保温层的金属软管,软管与出风口和风管接口通过专用卡箍连接。软管较长时,中间必须设置挂钩,但金属软管的长度不宜超过2米。
7、风道及配件等的可拆卸接口及调节机构等
不得安装在墙壁或地板上。
8、在安装防火阀之前取下易熔片。阀体安装后
检查弹簧和传动机构是否完好,安装易熔片。防火阀和消音器的安装方向应正确,支吊架应分开设置。
9、安装调节阀、防火阀等可调附件时
将操作手柄设置在易于操作的位置。所有送风管道和新风管道均配有三通拉杆阀。
10、风管安装最大允许偏差
线条
项目
允许偏差mm
测试方法
1
水平度
每米
3
拉线、流体连接器和
测量检查
总偏差
20
2
垂直
每米
2
挂线和尺子检查
总偏差
20
11、风管法兰连接用镀锌螺栓和螺母
它的螺母应该在同一侧。 3mm厚的软胶板作为空调风管法兰间的内衬材料,风管上的可拆卸接口不得设置在墙壁或地板上。有阀门和管道检查门的地方,天花板上应留有检查孔。
12、当风管穿过墙壁和地板以及墙壁或地板之间时
用耐火柔性材料致密填充。
详情如下:

13、管道两侧的沉降缝或变形缝
且与风机进出风口相连的地方应设置长度为200-300mm的人造革软管,软接头应牢固紧密。
14、在防火阀和消声器处设置单独的吊架
避开通风口、检查门、测量孔等,以免影响系统的使用。
15、阻尼阀
调节阀的手柄等部件必须安装在便于操作的位置。防火阀的安装必须符合设计。气流方向必须与阀体上的标记尖端一致,严禁反向。
16、为确保项目按期交付甲方
在安装土建吊顶时,风口随时满足安装风口。根据装修整体布局,及时配合相关方核实出风口位置,在不影响吊顶的情况下,将支风管引至位置。
17、风口到后
对照图纸核对风口的规格和尺寸,按系统分开堆放,并做好标记,以免安装时出错。
18、安装风口前仔细检查风口
检查出风口是否损坏,表面是否有划痕等缺陷。对于带有调节和转动部件的风口,检查活动部件是否灵活,叶片是否平直,与框架是否有摩擦。对于带过滤器的可开式通风口,检查过滤器是否损坏,百叶窗是否可以自由打开和关闭。风口安装好后,应再次检查风口的活动部件。
19、安装风口时
请注意,通风口与其所在房间的线条一致。特别是风管隐蔽时,出风口应服从房间线。天花板安装的扩散器与吊顶齐平。风口的安装必须牢固可靠。
20、提升整体装饰效果
风口和散流器的安装采用内固定方式:从风口侧面,用自攻螺钉固定在龙架或木架上,必要时加角钢支撑架。
21、安装在排气口
用水平仪、卷尺等保证水平度和位置,用拉线法保证同一出风口/散流器的直线度。
22、在外墙上安装百叶窗时
必须安装防虫网。防止飞虫通过风道进入室内,防止飞鸟通过风道进入风机,造成风机叶片损坏。
出风口安装细节:

Ⅳ、风道漏光试验及耐压试验
1、漏光检测系统
低压系统风管每10米接缝处漏光点不得超过2个,100米接缝平均不得超过16个; 100米平均不超过8个接头为合格。
(1)本项目通风工程风管安装后阀门公司,采用漏光法测试风管密封性,采样率为5%。100W低压带防护罩的照明灯作为漏光检测的光源,白天检测时,光源置于风道外侧;夜间检测时,光源置于风道内侧。风道。
(2)检测光源沿着被检测部位和接缝缓慢移动,在另一边观察。当发现有光射出时,说明明显漏气部位有被发现并记录下来。
p>
(3)系统风道采用分段检测和汇总分析的方法,漏光检测中若发现狭缝状漏光,需根据漏光部位不同进行处理。如果是法兰,用拧紧螺栓,更换垫片;如果接缝咬合,用密封胶密封。
2、低压系统的严格检验应采用抽查的方式进行
抽样率为5%,抽样检验不少于一个系统。在保证加工工艺和安装操作质量的前提下,采用漏光法进行检测。当漏光试验不合格时,应按规定的采样率进行漏气试验。中压系统的密封性检查应在漏光检测合格的严格条件下进行,系统风管的漏风试验应进行抽查。采样率为20%,采样率不得低于1个系统。所有高压系统都应进行漏气测试。
V、防腐保温
1、非镀锌钢空调风管表面除锈后
内表面喷涂醇酸底漆和醇酸瓷漆各两次,外表面刷涂防锈底漆两次;预埋混凝土风管除锈后,在内表面喷涂醇酸底漆和醇酸瓷漆两次,外表面刷两遍防锈底漆。
2、管道绝缘
天花板的消防排烟管道和竖井的消防排烟管道应设置保温层。
六、通风空调系统调试
1、调试的基础
根据设计图纸、产品规格和设计施工验收规范。
2、调试项目、程序、方法及调试要求
(1)空调系统电气设备及接线检查测试
在空调制冷专业人士的配合下,本作品由电气专业人士调试和操作。
(2)呼吸机单风扇空载试运行
检查所有安全措施;转动叶轮,不应有摩擦和颠簸;检查叶轮旋转方向是否正确;检查试运转时风机减震器是否移位;滑动轴承的最高温度不得超过70℃;滚动轴承最高温度不得超过80℃。
风机启动时,检查叶轮的转动方向是否与机壳上的箭头标记方向一致。若不一致,停机并更换接线,确保风扇正转;开机时观察风扇声音是否正常,如异常关机。
风扇启动后,用钳形电流表测量电机电流值。如果超过额定电流值,逐渐关闭主管中的风量调节阀,直至达到额定值。风扇运行一段时间后,用表面温度计测量轴承温度。一般风扇滑动轴承的最高允许温度为70℃,最高温升为35℃。滚动轴承最高允许温度80℃,温升40℃。
鼓风机性能测试
风扇风压Pq=|Pqy|+|Pqx|
式中:Pq---风机风压为风机总压力;帕
Pqy---风机压力出口总压力;帕
Pqx---风机吸入口全压;帕
风机总压的测量方法与风道内总压的测量方法相同电动调节阀接线原理图,使用同一仪器。风机出口处的测量断面选择在靠近风机出口的直管段上,气流相对稳定;风机吸入口测量段的位置选择在尽可能靠近风机吸入口的直管段上。
风机的风量测量分别在风机的出口端和吸入端进行,同时测量风机的风压。测量方法与风道内风量的测量方法相同。风机的风量是压力出口和吸入端风量的平均值。
3、空调系统测量与调整
(1)确定测量段和测量点的位置
测量段位置:选择气流相对均匀稳定的管段作为测量段位置。一般在产生局部阻力后,产生局部阻力之前,选择风管直径(或风管大边尺寸)的4~5倍测量断面。 1.直管段风管直径(或风管大边尺寸)的5到2倍。
矩形风道截面测量点位置:在测量矩形风道内的风速和风压时,将风道截面分成几个相等的小段,每个小段接近一个正方形,其面积不大于0.05平方米(即每小节边长约220mm)。测量点是每个小截面的中心点。
(2)各测点到风管中心的距离计算如下:
Rn=R〔(2n-1)/2m〕1/2
其中:R---风管半径,mm
Rn---风管中心到第n个测点的距离电动调节阀接线原理图,mm
n---从风管中心开始测量点的顺序
m---除以管道的环数
(3)风道风量测试计算
测量方法
用皮托管和倾斜微压计测量
平均静压和平均总压的计算:P=(P1+P2+---Pn)/n
式中P——平均静压,或平均总压,Pa;
P1、P2---Pn---确定断面上各测点的静压或总压值,Pa;
n---测量点的总数。
平均动压计算Pd=[[(Pd1)1/2+(Pd1)1/2+---+(Pd1)1/2]/ n]2
其中:Pd---平均动压,Pa;
Pd1、Pd2、---Pdn---各测点动压值,Pa;
平均风速计算
计算风管截面的平均风速如下:V=(2Pd/ρ)1/2
式中V——平均风速,m/s;
Pd---平均动压,Pa;
ρ--- 空气密度,Kg/m3,一般大于2;
风量计算
如下计算风道内的风量:
L=
其中:L---风量,m3/h;
F---风管截面积,m2;
V---平均风速,m/s。
(4)出风口(回风)风量的确定
测量方法和仪器
通常使用热球风速计或叶轮风速计直接测量风口处风口的风量。为使测量准确,可采用罩盖法。
测量点的位置和数量
将测点的位置和数量按照风口横截面的大小分成等面积的小块,测量中心点的风速,测点的数量不少于超过四个。
风口平均风速的计算
根据算术平均值计算风口的平均风速
V=(V1+V2+---+Vn)/n
其中:V---平均风速,m/s;
V1、V2、Vn---各测点风速,m/s;
n---测量点数。
风口风量的计算
一般风口的风量计算如下:L=
式中:L——风口风量,m3/h;
Fw---出风口外框面积,m2;
V——风口处平均风速,m/s;
K---考虑格栅等影响引入的修正系数,取0.7~1。
(5)系统风量调整
风量调节方法:流量比例分配法
方法是从最远管道最不利的风口开始,逐步调整,直至达到风机。
风量调整如下:
先选择离风机最远的1号风口作为最不利风口,即最不利管道为1-3-5-9,从1号支管开始测量调整;分别测量支管1、2的风量,用三通调节阀(或用安装在支管上的其他类型的阀门)调节,使两支管的实测风量之比为等于设计风量之比,即:L2c/L1c=L2s/L1s。
用同样的方法测量和调整各支管和支干管,使L4c/L3c=L4s/L3s; L7c/L6c=L7s/L6s。此时实测风量不等于设计风量,但已经为达到设计风量创造了条件。
最后,根据风量平衡原理,通过调节风机出口主管上的风量控制阀,使总风量达到设计风量,各支主管、支管的风量将根据各自的设计风量等比例分配。
4、防烟排烟系统调试
系统的调试是系统安装工程的最后一个重要环节。我们要以高度的责任心做好这个环节,做好验收工作。
(1)调试准备
防排烟系统工程施工结束时,施工单位应对照设计施工图,按照有关施工规范的要求对工程的各个部分进行逐一检查。
p>
1)送排风机
①送、排风机的型号、风压、风量及安装位置。
②风扇底座的牢固性,防振防腐措施。
③风扇的供电及主备供电情况。
④风扇的进风口和出风口与系统相连。
2)防火阀、排烟防火阀型号、安装位置、停机状态、电源、控制电路连接状态、单件动作可靠性。
3)送风口和排风口的安装位置、安装质量和运行可靠性。
4)管道和管件的材料和规格,以及连接垫片、管道支架、吊架的牢固度以及管道穿墙和地板的措施。
简而言之,系统的每个组件都必须满足设计和施工质量要求。如果发现不符合设计和施工要求,是时候整改了。同时要与消防分包密切联系,按施工方案安装各项工程。
(2)风扇运转测试
风扇是防烟排烟系统的心脏。鼓风机和排风机的正常运行是保证防烟排烟工程质量的关键。风机试运行目的:首先观察风机在正常供电条件下是否正常运行;其次,在突然断电的情况下,打开备用电源时风扇是否能正常启动。
风机试运转时间不少于30min。从启动过程到正常运行,应注意以下几个方面:
1)风扇运行过程中是否有过电流,可以用风扇自带的电流表观察,也可以用钳形电流表测量三相。
2)风扇轴承和电机的温升。可以用半导体表面温度计测量。
3)The of the fan . This issue is for fans at level or roof level. The of the fan can be by a .
4) of . This in metal , and the of the can also be with a .
5) the of the valve is and the is , or be .
6)The noise of the fan is not as a that is put into in the event of a fire , but as a trial , it is to it based on 's .
The trial of the fan is not only the need for , but also the fan be in the to that the fan is in a good state at all times. , a trial run be out at least every six .
(3) test of air
The main of the test of the air is to the air can meet the the test. The test is:
the test, the air of the at the value, and then the in the room and the wind speed at the door under the most . The of air is for modes. For the air , the air can be by the motor speed or using the valve on the air duct, which is very to . For the , the size of the air can be by the valve on the , so as to the air sent to the until it the value, which is also more to . For the - , must be set on the air duct, , the air be . The of air can be by the flow in the air duct, or by an inlet at the inlet of the . The of using the inlet can the size of the air from the size of the , which is more to .
(4) fume test
In order to the smoke can meet the of the , it is to check the smoke meets the of the fire . The test is: start the smoke and put it into . When the fume is for the smoke of one smoke , all the smoke ports in the smoke and by the fume be , for , when one fume is for more than two smoke and , the smoke ports in the smoke and area and the next smoke area be fully , and the each smoke port be .
The of the smoke can be by an , such as a hot bulb or a hot wire , which is very . The of on the plane of the port is the same as that of the air- .
It be noted that the test of the fume is out in the cold state, the air the fan in the cold or hot state is to the of the fan.
(5)Smoke and test
Test : To the of and or of smoke and the or test of the whole smoke and .
1)Under the of power , and or smoke is to the of the smoke to the of the smoke , and the or of the of the smoke wall , a of such as the start of the smoke or the , and the of the air .
2)Under the of man-made power and power , the joint or of the whole smoke and can be by or smoke .
In the test, coils and can be used as man-made of smoke. If , it is to use a . or be out in , in with fire risk and with uses, such as parts, , guest rooms, etc. for . at each site be 2 to 3 times. In each test, be paid to the input of and the time be . If it is found that a fails to be put into in the order in the , in the of or , the of test be , and the test be . .
