欢迎来到江苏泰科流体控制阀门有限公司网站!
气动平衡笼调节阀安装调试
尽管已经示出和描述了本发明的实施例,但是本领域普通技术人员将理解,在不脱离本发明的原理和精神的情况下,可以对这些实施例进行各种修改。 、替换和变更,本发明的范围由所附权利要求及其等同物限定。气动调节阀是以压缩空气为动力源,气缸为执行机构,借助电动阀门定位器、转换器、电磁阀、保持阀等附件驱动阀门,实现切换或比例调节,接收工业自动控制系统的控制信号,用于调节管道介质:流量、压力、温度等工艺参数。气动调节阀具有控制简单、响应速度快、本质安全、无需额外防爆措施等特点。

气动调节阀通常由气动执行器与调节阀连接、安装、调试组成。气动执行器可分为单作用和双作用两种。单作用执行器有回位弹簧,而双作用执行器没有回位弹簧。其中单作用执行机构在失去原点或突发故障时,能自动恢复到阀门最初设定的开启或关闭状态。
气动调节阀按动作形式分为气开式和气关式两种,即所谓的常开式和常闭式。气动调节阀的气开或气关通常是通过执行机构的正反作用和阀态结构的不同装配方式来实现的。

气动平衡笼式调节阀安装调试方式:
气开式(常闭式)是当膜头上的气压增大时,阀门向开度增大的方向运动,当达到输入气压的上限时,阀门处于完全打开状态。反之,当气压降低时,阀门向关闭方向运动,当没有空气输入时,阀门全关。顾通常我们把气开控制阀称为失效关闭阀。
气关型(常开型)的作用方向与气开型正好相反。当气压升高时,阀门向关闭方向移动;当气压降低或不降低时,阀门向开启方向移动或全开。顾通常我们把气关控制阀称为失效开启阀。
风口和风口的选择是从工艺生产的安全角度考虑的。切断气源时,调节阀处于关闭位置安全还是打开位置安全。
例如,对于加热炉的燃烧控制,调节阀安装在燃气管道上,根据炉膛温度或加热炉出口处被加热物料的温度来控制燃料的供应。加热炉。这时候选择气开式阀门比较安全,因为一旦气源停止供应江苏阀门厂家,阀门关闭比全开更合适。如果空气供应中断并且燃油阀完全打开,则存在过热的危险。另一个例子是冷却水冷却的热交换设备。热材料通过与热交换器中的冷却水进行热交换而被冷却。调节阀安装在冷却水管上,利用热交换后物料的温度来控制冷却水量。气源中断时,控制阀应处于开启位置更安全,应选用断气式(即FO)控制阀。

气动平衡笼调节阀阀门定位器的安装调试
阀门定位器是调节阀的主要附件,与气动调节阀配合使用较多。它接受调节器的输出信号,然后用其输出信号来控制气动调节阀。位移通过机械装置反馈给阀门定位器,阀门位置通过电信号传递给上位系统。阀门定位器按结构和工作原理可分为气动阀门定位器、电动气动阀门定位器和智能阀门定位器。
阀门定位器可以增加调节阀的输出功率,减少调节信号的传输延迟,加快阀杆的运动速度,提高阀门的线性度,克服阀杆的摩擦力和消除不平衡力的影响,保证调节阀的正确定位。执行器分为气动执行器和电动执行器,又分为直行程和角行程。用于自动和手动开启和关闭各种切割门、挡风板等。

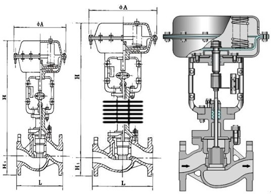
气动平衡笼式调节阀的安装、调试和安装原理
(1)气动调节阀的安装位置要求离地有一定的高度,阀门的上下必须有一定的空间tycovalve,以方便阀门的拆卸和维修。对于安装气动阀门定位器和手动轮的调节阀必须易于操作、观察和调整。
(2)调节阀应安装在水平管道上,上下与管道垂直。一般应在阀门下方支撑,以保证稳定性和可靠性。特殊场合,
(3)调节阀工作环境温度应在(-30~+60)相对湿度不大于95%~95%,相对湿度不大于超过 95%。
(4)调节阀前后应有直管段,长度不小于管径(10D)的10倍,避免直管阀门截面太短,影响流量特性。
(5)当控制阀口径与工艺管道口径不同时电动笼式调节阀,应连接异径管。安装小口径控制阀时,可采用螺纹连接。阀体上的流体方向箭头应与流体方向一致。
(6)要安装旁通管,目的是方便切换或手动操作,不停机即可维修控制阀。
(7)调节阀在安装前应彻底清除管路中的异物,如污垢、焊渣等。

气动平衡笼式调节阀安装调试技术总结
本实用新型公开了一种气动笼式调节阀电动笼式调节阀,包括气动薄膜执行机构、阀体和法兰管,两法兰管对称分布,法兰管的一端设有法兰法兰管外表面套有法兰连接组件,法兰连接组件包括螺杆、棱镜、轴承、内齿圈和圆柱体,圆柱体均匀分布在管子外表面周围。法兰管,轴承固定套在圆柱体两端,轴承与法兰管固定连接,圆柱体一端开有肋槽,棱柱一端滑动嵌入肋内凹槽,丝杆固定设置在棱镜的侧面。另一端,法兰管的一端开有通孔,法兰片的外表面开有螺纹孔;通过设计内齿圈和圆柱体,旋转内齿圈可以控制螺杆的同步旋转并与之同步。蓝板螺纹连接,无需单次转动,操作简单,安装拆卸方便,大大提高了拆装效率
调节阀 气动薄膜调节阀 阀门电动装置